Άγιος Αθανάσιος, Νεάπολη, Φιλιππούπολη, Άγιοι Σαράντα, Άγιος Γεώργιος, Νεράιδα και Πυροβολικά είναι οι συνοικίες όπου βρίσκονται αυτές οι δέκα παιδικές χαρές που εκσυγχρονίζονται και αναβαθμίζονται και έρχονται να προστεθούν στις 25 παιδικές χαρές (νέες και ανακατασκευασμένες), που δημιουργήθηκαν το προηγούμενο διάστημα. Μέσα σε μια τριετία, ο Δήμος Λαρισαίων θα έχει αποκτήσει περίπου 35 σύγχρονες, πιστοποιημένες παιδικές χαρές.
Ο συνολικός εκσυγχρονισμός και η βελτίωση των υποδομών που προτείνονται στοχεύει στην παροχή αναβαθμισμένων χώρων σε όλους τους πολίτες, είτε είναι κάτοικοι και επισκέπτες είτε είναι μέλη των προσφυγικών κοινοτήτων, ώστε να δραστηριοποιείται το σύνολο των κοινωνικών ομάδων μέσα σε αυτές, προσδίδοντας ένα θετικό περιβαλλοντικό, πολιτισμικό και κοινωνικό πρόσημο.
Οι προτεινόμενες παρεμβάσεις θα συμβάλλουν στην ικανοποίηση των αναγκών της τοπικής κοινωνίας του Δήμου Λαρισαίων, που υποδέχτηκε τη Δομή Φιλοξενίας Προσφύγων και θα προσφέρουν αναβαθμισμένους χώρους αναψυχής κατάλληλους για χρήση από όλα τα παιδιά της πόλης, αλλά και αυτά που φιλοξενούνται στη Δομή, χωρίς αποκλεισμούς.
Νέοι χώροι χαράς και δημιουργικής απασχόλησης
Οι παρεμβάσεις, που αφορούν στην προμήθεια και εγκατάσταση σύγχρονου εξοπλισμού παιδικών χαρών, πληρούν όλες τις σχετικές προδιαγραφές και για παιδιά με κινητικές ή άλλες δυσκολίες (ΑμεΑ). Συνολικά, πρόκειται να δημιουργηθούν περίπου 3,5 στρέμματα νέων χώρων χαράς και δημιουργικής απασχόλησης, σε δέκα διαφορετικά σημεία αναφοράς στην πόλη.
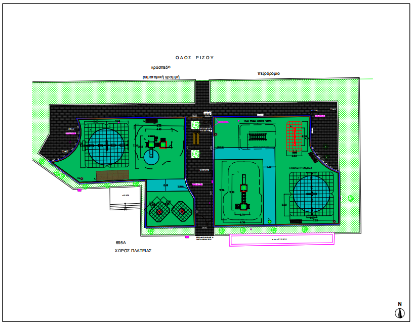
Η μεγαλύτερη παρέμβαση αφορά στην παιδική χαρά στο πάρκο του Αγίου Αντωνίου, με τα έργα ανακατασκευής και εκσυγχρονισμού να αφορούν σε μια έκταση άνω των 900 μ2 -ικανοποιώντας ένα χρόνιο αίτημα των κατοίκων της ευρύτερης περιοχής του Αγίου Αθανασίου, για αναβάθμιση των υποδομών στο συγκεκριμένο πάρκο.

Σε πάνω από 500 μ2 θα εκτείνεται η σύγχρονη παιδική χαρά στην πλατεία Ανατολικής Ρωμυλίας στη Φιλιππούπολη, ενώ συνολικά άλλα 700 μ2 αναβαθμισμένων χώρων παιδικών χαρών θα δημιουργηθούν στην πλατεία Παν.Δημητρακόπουλου (Α, Β και Γ χώροι), στη Νεάπολη.

Αναλυτικά, οι δέκα παιδικές χαρές που εκσυγχρονίζονται και αναβαθμίζονται είναι:
1. Παιδική χαρά πάρκου Αγίου Αντωνίου – Άγιος Αθανάσιος
2. Παιδική χαρά πλατείας Ανατ. Ρωμυλίας – Φιλιππούπολη
3. Παιδική χαρά πλατείας Ηρώων Κατοχής – Άγιοι Σαράντα
4. Παιδική χαρά επί των οδών Προφήτη Ηλία, Θυμάτων Κατοχής & κ. Δημητριάδη - πλατεία Προφήτη Ηλία, Νεράιδα
5. Παιδική χαρά πλατείας Παν. Δημητρακόπουλου (χώρος Α΄/ Καραολή Δημητρίου & 1ης Μεραρχίας) – Νεάπολη
6. Παιδική χαρά πλατείας Παν. Δημητρακόπουλου (χώρος Β΄/ Καραολή Δημητρίου) - Νεάπολη
7. Παιδική χαρά πλατείας Παν. Δημητρακόπουλου (χώρος Γ΄/ 1ης Μεραρχίας & Κ. Δαβάκη) – Νεάπολη
8. Παιδική χαρά πλατείας Ελλήνων Βόρειας Ηπείρου (Πρωτεσιλάου, Καστελλίου & Μ. Ασίας) – Άγιος Γεώργιος
9. Παιδική χαρά πλατείας Μίκη Θεοδωράκη (Νικόπολης, Σικελιανού & Άρη Αλεξάνδρου) – Άγιος Γεώργιος
10. Παιδική χαρά πλατείας Ελευθερίας – Πυροβολικά
Ο εγκεκριμένος προϋπολογισμός του έργου «προμήθεια και εγκατάσταση εξοπλισμού για την αναβάθμιση παιδικών χαρών στον Δήμο Λαρισαίων» ανέρχεται στο ποσό των 949.957,80 ευρώ (συν ΦΠΑ).



